ZDA I Zupelli design architettura
Casa Donella
Demolizione e Ricostruzione con Muratura di Tamponatura in blocchi POROTON® P700 TS
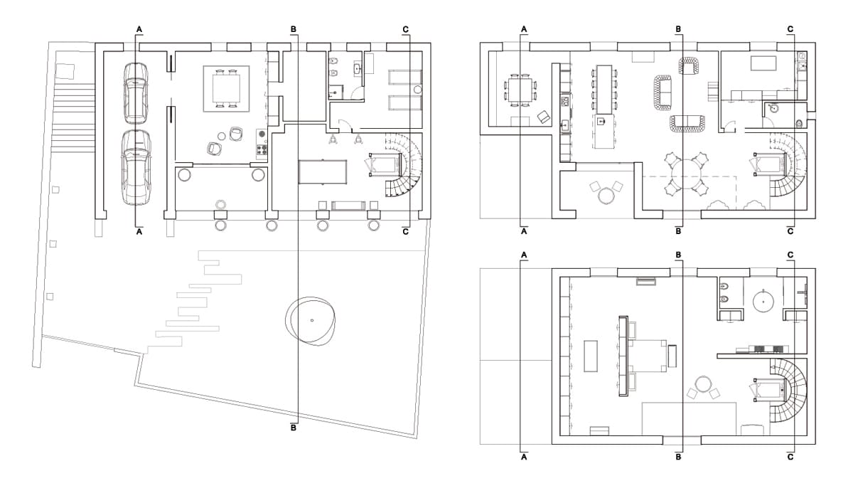
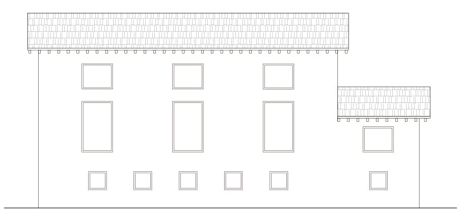
Il legame con il contesto morfologico e con le preesistenze è stato uno dei punti di partenza fondamentali del progetto; l’architettura, infatti, è stata ricostruita seguendo le linee guida dell’edificio esistente, enfatizzando alcuni elementi tradizionali tipici: il tetto a falda, le travi a vista e il porticato, e inserendo delle contaminazioni più contemporanee a contrasto.
Nel complesso la nuova architettura definisce un atteggiamento di empatia con il contesto esistente, andando a ripristinare sia la tipologia abitativa che la localizzazione del precedente edificio, soltanto in una veste più contemporanea.
Altro aspetto fondamentale è il “continuum spaziale” tra interno ed esterno ma anche tra i livelli interni dell’abitazione.
Scheda progetto
| Ubicazione | Cividate al Piano (BG) |
| Progetto | ZDA I Zupelli design architettura: Arch. Carlo Zupelli |
| Impresa | Tomas Costruzioni |
| Tipologia di muratura | Tamponatura in blocchi POROTON® P700 TS |

