Studio Ass. d’Architettura&Design Tieni&Borghesan
Edificio residenziale ad Angiari
Nuova costruzione con Doppia parete di tamponatura in blocchi POROTON® APT PLUS e Tramezze POROTON® APR
Il progetto della casa ha tenuto in considerazione i principi del Feng Shui e l’orientamento, ottimizzando i guadagni solari invernali, mentre d’estate il sole è schermato dalla sporgenza del tetto.
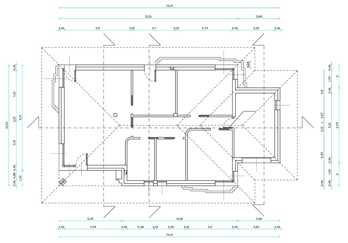
La struttura portante è a telaio in cemento armato con tamponamento in blocco POROTON® da 25 cm di spessore, coibentata con un doppio strato di EPS e in XPS fino a 1 m di altezza. A protezione dell’isolante è stata realizzata una parete esterna in Tramezze POROTON® ancorata alla tamponatura con staffe di acciaio inox. Lo spessore totale della muratura perimetrale è di 47 cm. I solai e la copertura, di tipo ventilato, sono in laterocemento.
L’edificio non è collegato alla rete del gas e non utilizza fonti di energia fossile. L’impianto fotovoltaico, oltre a soddisfare il fabbisogno giornaliero di energia elettrica per il normale uso domestico, contribuisce alla climatizzazione grazie a due pompe di calore, mentre la VMC controlla anche l’umidità. Dal punto di vista energetico e dei consumi la casa è in classe A4.
Scheda progetto
| Ubicazione | Angiari (VR) |
| Progetto | Studio Ass. d’Architettura&Design Tieni&Borghesan: Arch. Riccardo Tieni (arch., strutt., imp.), Arch. Denis Borghesan (DL) |
| Impresa | Fontana Fratelli S.r.l. |
| Tipologia di muratura | Doppia parete di tamponatura in blocchi POROTON® APT PLUS e Tramezze POROTON® APR |

