MTA Associati
Il nuovo polo scolastico di Villamarina a Cesenatico
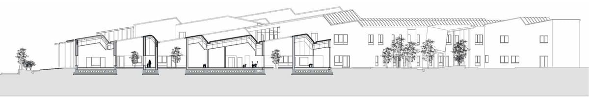
Nuova costruzione con Muratura di tamponatura in blocchi rettificati POROTON® PLAN.
Il nuovo complesso scolastico, che comprende una scuola d’infanzia e una scuola elementare, si trova in una zona strategica, con l’intento di diventare un punto di riferimento per la comunità e favorire la riqualificazione del quartiere circostante. È il risultato di un progetto interdisciplinare che, ha dato priorità al benessere dei bambini e degli operatori didattici, con un’attenzione particolare alla sicurezza, all’acustica, alla luce naturale, alla ventilazione e alla flessibilità degli spazi.
La struttura portante è costituita da una fondazione in platea e un telaio in acciaio, con solai e copertura leggeri, supportati da pilastri e travi di dimensioni contenute.
Le tamponature esterne sono realizzate con muratura rettificata POROTON® PLAN, un sistema ad alta performance termica e acustica.
La combinazione tra l’involucro ad alte prestazioni e un sistema impiantistico che mira alla minimizzazione dei consumi e all’impiego di fonti rinnovabili ha condotto al raggiungimento della classe energetica A.
Scheda progetto
| Ubicazione | Cesenatico (FC) |
| Progetto | MTA Associati |
| Impresa | CMC Cooperativa Muratori e Cementisti (RA) |
| Tipologia di muratura | Tamponatura in blocchi rettificati POROTON® PLAN |

