Arch. Alessandra Bianchi, Arch. Alessandro Pasquinelli
Selva Nera
Nuova costruzione con Muratura di Tamponatura in blocchi POROTON® P600, pareti tra U.I. con doppie Tramezze POROTON®
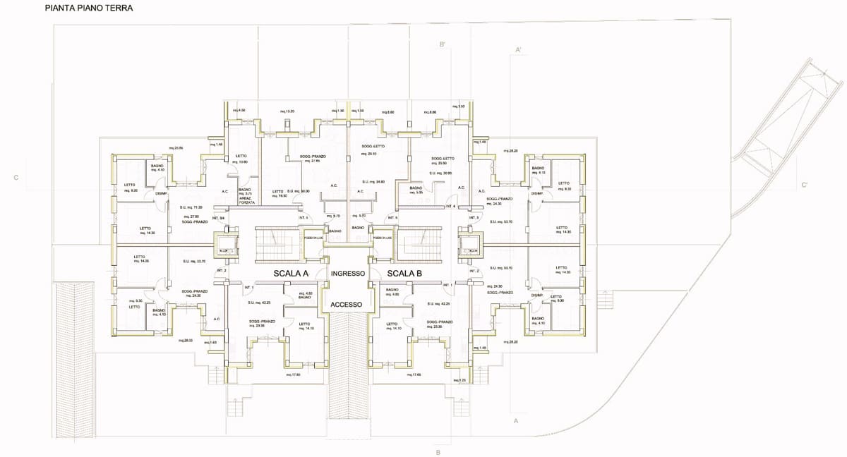
Primo di tre edifici che saranno realizzati all’interno di un’area destinata ad espansione residenziale, questa palazzina di 31 alloggi su tre piani è caratterizzata da alti livelli di comfort abitativo, qualità ambientale e sostenibilità energetica.
Le caratteristiche del pacchetto di tamponatura (muratura POROTON® + isolante + parete ventilata) soddisfano ampiamente le norme vigenti in materia di abbattimento acustico e termico, e hanno contribuito notevolmente alla certificazione energetica in Classe A+ nazionale e alla certificazione CasaClima classe A.
I divisori interni tra gli alloggi sono realizzati con doppia parete in tramezze POROTON® ed interposti pannelli in lana di roccia, garantendo ottimali prestazioni acustiche e termiche.
L’impianto di climatizzazione è a pompa di calore ad alta efficienza, con ricambio di aria costante, filtraggio e sistema entalpico per il recupero del calore; produce l’acqua sanitaria ed è coalimentato con pannelli fotovoltaici e integrato da un sistema domotico per il controllo da remoto della climatizzazione e della sicurezza di ogni appartamento.
Scheda progetto
| Ubicazione | Roma (RM) |
| Progetto | Arch. Alessandra Bianchi, Arch. Alessandro Pasquinelli, Ing. Fabrizio Piergentili (elettr.), Ing. Ivan Grazini (DL), Studio FO(u)RMA S.r.l. (arch.), Ing. Marco Polimeno (imp. term.) |
| Impresa | ERGODOM S.r.l. |
| Tipologia di muratura | Tamponatura in blocchi POROTON® P600, pareti tra U.I. con doppie Tramezze POROTON® |

